公開日 2025年11月01日
ふれあいセンターについて
目的:地域社会全体の中で福祉の向上や同和問題をはじめとするあらゆる人権啓発及び住民交流の拠点となる開かれたコミュニティセンターとして、生活上の各種相談事業及び人権課題の解決のための各種事業を総合的に行います。
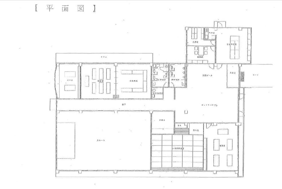
| 名 称 | 館だより | 行事・講座等 | 所在地 | 連絡先 | 館内図 |
吉野中央ふれあいセンター
|
R7.10月吉野中央ふれあいセンターだより(裏)[PDF:633KB]
|
阿波市吉野町西条字宮ノ前27番地1 | 088-696-2486 |
|
|
吉野一条ふれあい会館
|
※2月1回発行R7.11月吉野一条ふれあい会館館だより(1.4面)[PDF:911KB]
|
R7.11月吉野一条ふれあい会館館だより(2.3面)[PDF:1.08MB] | 阿波市吉野町西条字東須賀94番地3 |
088-696-2487 |
|
吉野柿原ふれあい会館
|
阿波市吉野町柿原1丁目118番地 |
088-696-3033 |
|
||
市場文化会館
|
阿波市市場町大野島字天神110番地1 |
0883-36-5762
|
|
利用時間:午前9時00分~午後10時00分
休館日:毎週土曜日・日曜日、祝日、年末年始
【利用許可申請書ダウンロード】
利用許可申請書.doc(31KB) 利用許可申請書.pdf(54KB)
【リンク】
あいぽーと徳島 徳島県立人権教育啓発推進センター
地図
お問い合わせ
PDFの閲覧にはAdobe社の無償のソフトウェア「Adobe Acrobat Reader」が必要です。下記のAdobe Acrobat Readerダウンロードページから入手してください。
Adobe Acrobat Readerダウンロード

